Zamów szczegóły oferty
Warszawa, Mokotów, Mieszkanie, 2 pokoje 50.82m², Piętro: 2, Data oddania: 30.09.2019
Dodaj do schowka
kredytową
Cena brutto lokalu: 777.546 PLN
Rata od 2.728 PLN/mc
Oblicz zdolnośćkredytową
Cena za metr: 15.300 PLN
Lokalizacja: Warszawa
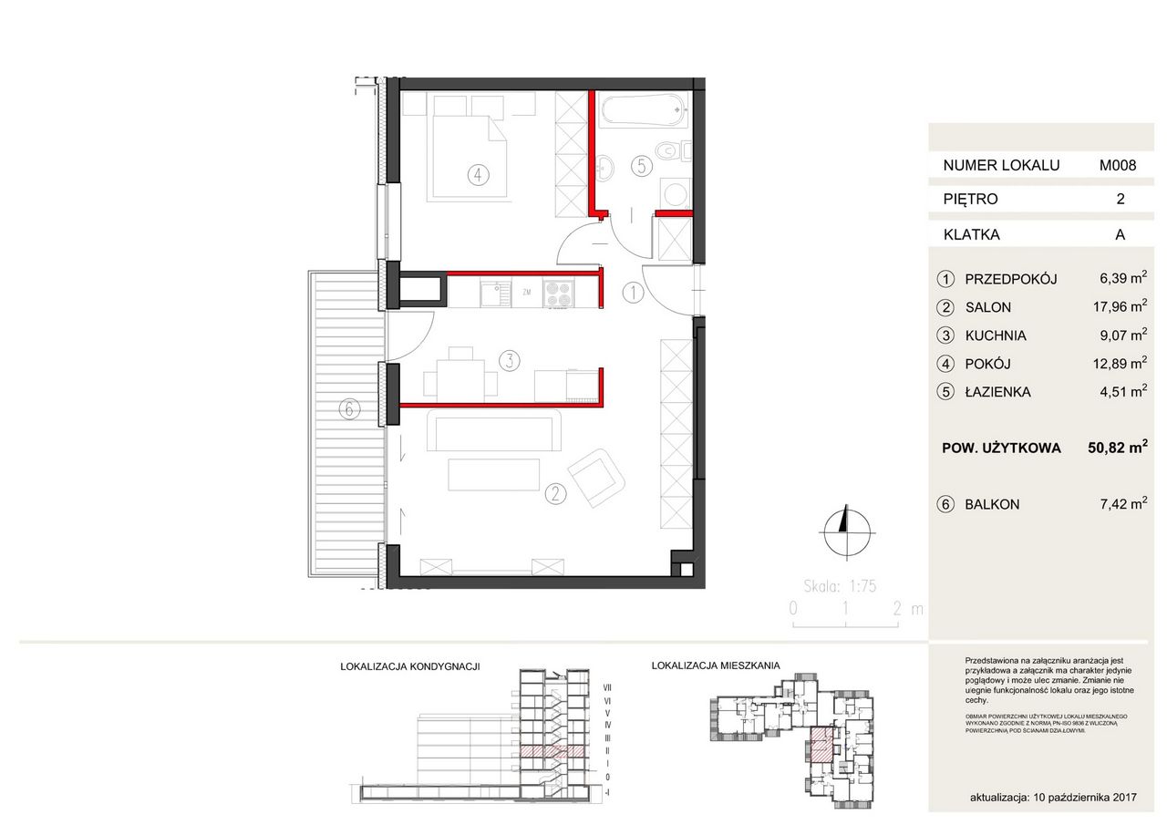
Mieszkanie: 2 pokoje 50.82m²
Piętro: 2
Data oddania: 30.09.2019
Podstawowe dane
| Metraż | 50.82 m² |
| Pokoje | 2 |
| Cena netto PLN | 720.007 PLN |
| Cena brutto PLN | 777.546 PLN |
| Typ kuchni | zamknięta z oknem |
| Powierzchnia dodatkowa | balkon |
| Wysokość pomieszczeń | 2.71m |
| Okna | |
| Strony świata | |
| Parapety | kamień naturalny |
| Winda | |
| Miejsce postojowe w garażu podziemnym | |
| Obowiązkowy zakup garażu | |
| Cena brutto m. postojowego w PLN | 49000 |
| Liczba poziomów garażu podziemnego | |
| Komórka lokatorska | |
| Teren chroniony | |
| Monitoring na terenie inwestycji | |
| Instalacje TV | |
| Instalacje internetowe | |
| Budynek przystosowany dla osób niepełnosprawnych | |
| Ogrzewanie | |
| Wideodomofon | |
| Lokale usługowe na terenie inwestycji |
Lokalizacja
Dane inwestycji
| Liczba ofert w inwestycji | |
| Liczba budynków | |
| Liczba pięter | 8 |
| Rok bydynku | 2019 |
| Rozpoczęcie budowy | |
| Termin oddania | 2019-09-30 |
| Typ budynku | |
| Forma własności | |
| Materiał budowania |
Dane lokalu
| Województwo | Mazowieckie |
| Miasto | Warszawa |
| Dzielnica | Mokotów |
| Rejon | Wierzbno |
| Budynek | A |
| Numer | M008 |
| System płatności | |
| Data aktualizacji | 27.05.2019 |



