Zamów szczegóły oferty
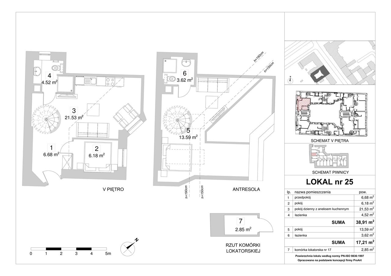
Warszawa, Praga-Północ, Mieszkanie, 2 pokoje 41.74m², Piętro: 5, Data oddania: 31.12.2019
Dodaj do schowka
kredytową
Cena brutto lokalu: 584.360 PLN
Rata od 2.855 PLN/mc
Oblicz zdolnośćkredytową
Cena za metr: 14.000 PLN
Lokalizacja: Warszawa
Mieszkanie: 2 pokoje 41.74m²
Piętro: 5
Data oddania: 31.12.2019
Podstawowe dane
| Metraż | 41.74 m² |
| Pokoje | 2 |
| Cena netto PLN | 560.398 PLN |
| Cena brutto PLN | 584.360 PLN |
| Typ kuchni | aneks bez okna |
| Powierzchnia dodatkowa | bd |
| Wysokość pomieszczeń | 3.5m |
| Okna | drewniane |
| Strony świata | |
| Parapety | kamień naturalny |
| Winda | |
| Miejsce postojowe w garażu podziemnym | |
| Obowiązkowy zakup garażu | |
| Cena brutto m. postojowego w PLN | 0 |
| Liczba poziomów garażu podziemnego | |
| Komórka lokatorska | |
| Teren chroniony | |
| Monitoring na terenie inwestycji | |
| Instalacje TV | |
| Instalacje internetowe | |
| Budynek przystosowany dla osób niepełnosprawnych | |
| Ogrzewanie | miejskie |
| Wideodomofon | |
| Lokale usługowe na terenie inwestycji |
Lokalizacja
Dane inwestycji
| Liczba ofert w inwestycji | |
| Liczba budynków | |
| Liczba pięter | 0 |
| Rok bydynku | 2019 |
| Rozpoczęcie budowy | |
| Termin oddania | 2019-12-31 |
| Typ budynku | |
| Forma własności | |
| Materiał budowania |
Dane lokalu
| Województwo | mazowieckie |
| Miasto | Warszawa |
| Dzielnica | Praga-Północ |
| Rejon | |
| Budynek | |
| Numer | 25 |
| System płatności | |
| Data aktualizacji | 11.09.2019 |




