Zamów szczegóły oferty
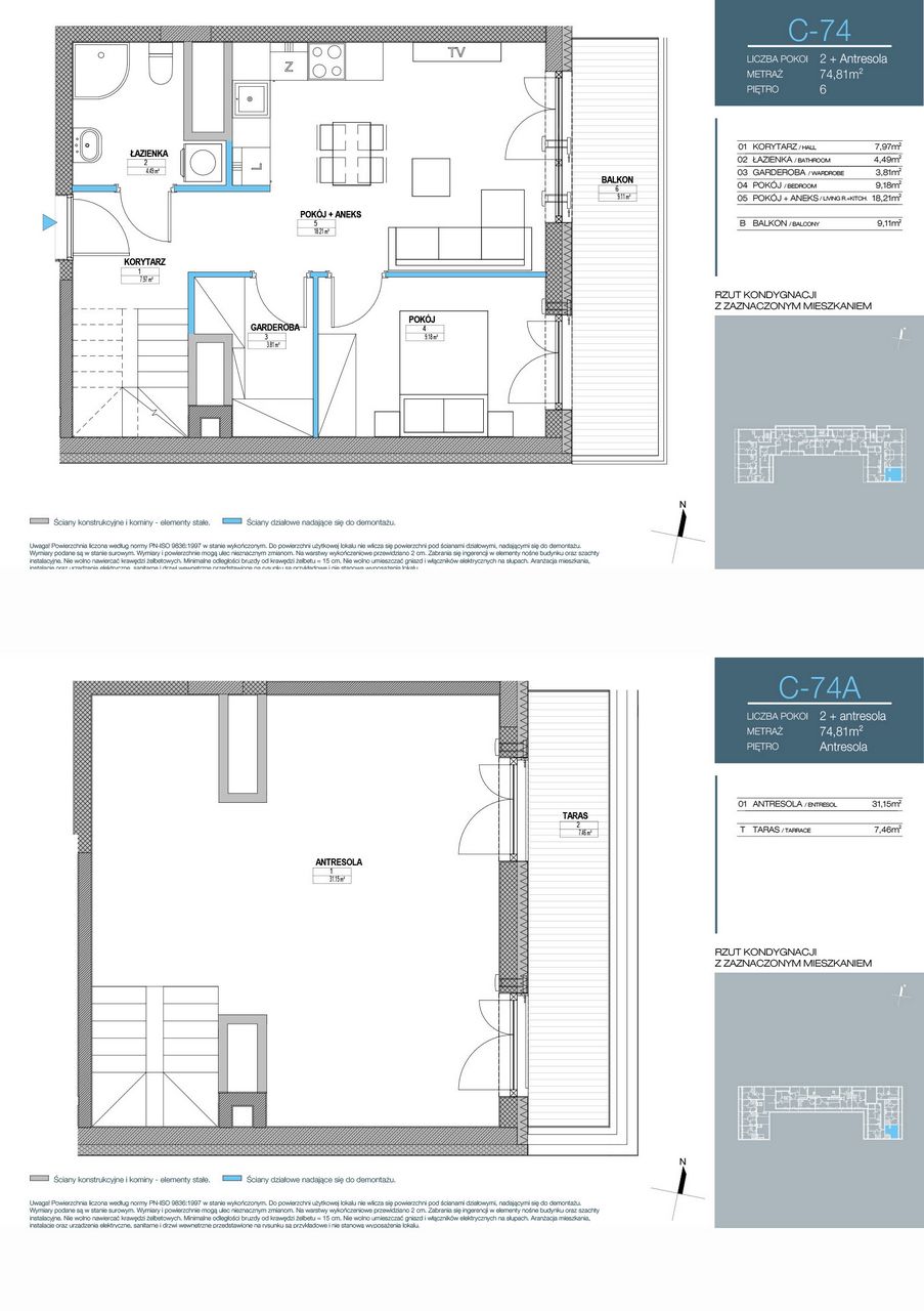
Warszawa, Mokotów, Mieszkanie, 2 pokoje 74.81m², Piętro: 6, Data oddania: 31.12.2020
Dodaj do schowka
kredytową
Cena brutto lokalu: 747.883 PLN
Rata od 2.624 PLN/mc
Oblicz zdolnośćkredytową
Cena za metr: 9.997 PLN
Lokalizacja: Warszawa
Mieszkanie: 2 pokoje 74.81m²
Piętro: 6
Data oddania: 31.12.2020
Podstawowe dane
| Metraż | 74.81 m² |
| Pokoje | 2 |
| Cena netto PLN | 692.484 PLN |
| Cena brutto PLN | 747.883 PLN |
| Typ kuchni | aneks bez okna |
| Powierzchnia dodatkowa | balkon,taras |
| Wysokość pomieszczeń | 2.65m |
| Okna | drewniane |
| Strony świata | |
| Parapety | kamień naturalny |
| Winda | |
| Miejsce postojowe w garażu podziemnym | |
| Obowiązkowy zakup garażu | |
| Cena brutto m. postojowego w PLN | 39000 |
| Liczba poziomów garażu podziemnego | -2 |
| Komórka lokatorska | |
| Teren chroniony | |
| Monitoring na terenie inwestycji | |
| Instalacje TV | |
| Instalacje internetowe | |
| Budynek przystosowany dla osób niepełnosprawnych | |
| Ogrzewanie | miejskie |
| Wideodomofon | |
| Lokale usługowe na terenie inwestycji |
Lokalizacja
Dane inwestycji
| Liczba ofert w inwestycji | |
| Liczba budynków | |
| Liczba pięter | 6 |
| Rok bydynku | 2020 |
| Rozpoczęcie budowy | |
| Termin oddania | 2020-12-31 |
| Typ budynku | |
| Forma własności | |
| Materiał budowania |
Dane lokalu
| Województwo | mazowieckie |
| Miasto | Warszawa |
| Dzielnica | Mokotów |
| Rejon | |
| Budynek | C |
| Numer | C-74 |
| System płatności | według postępu prac dewelopera |
| Data aktualizacji | 18.01.2021 |



